Skip to main content

NFPZ3000 | Nederman | Dust Collectors

  • Description

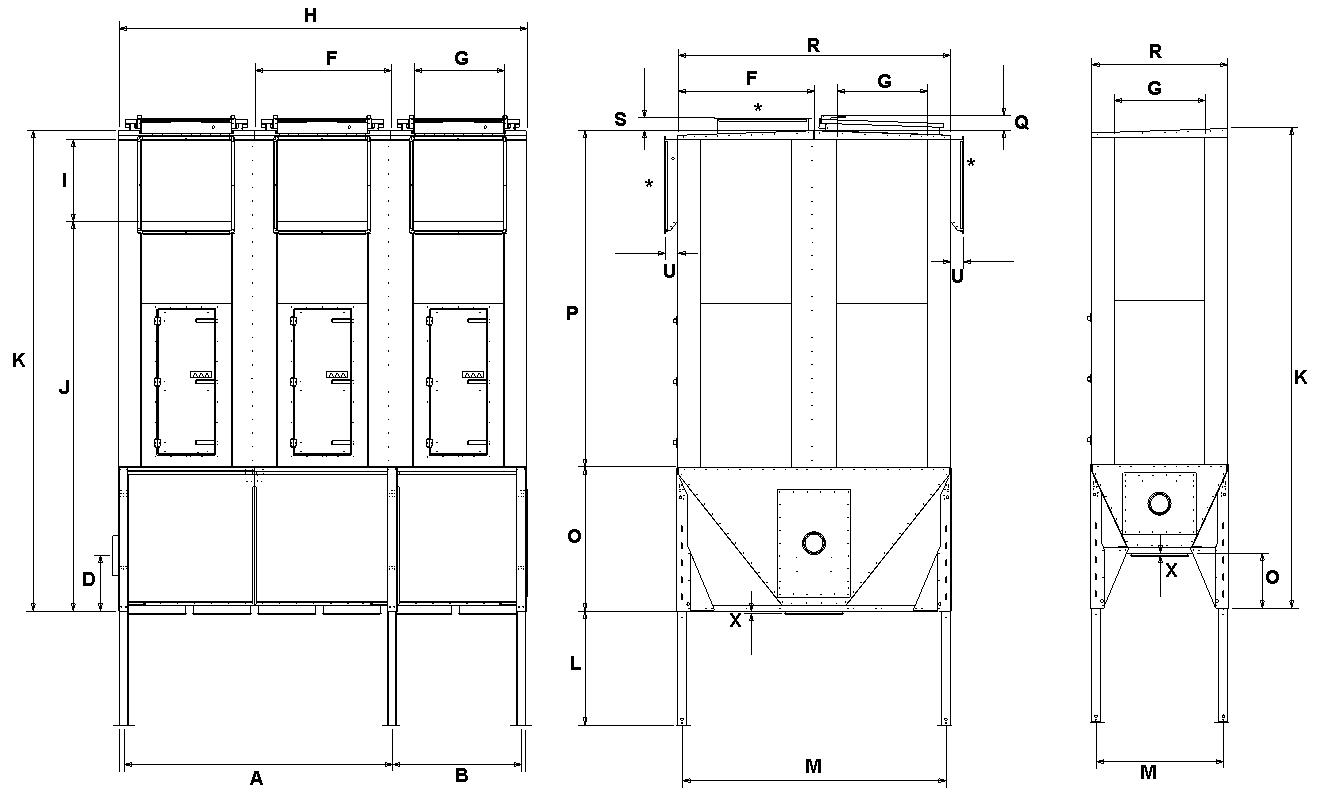
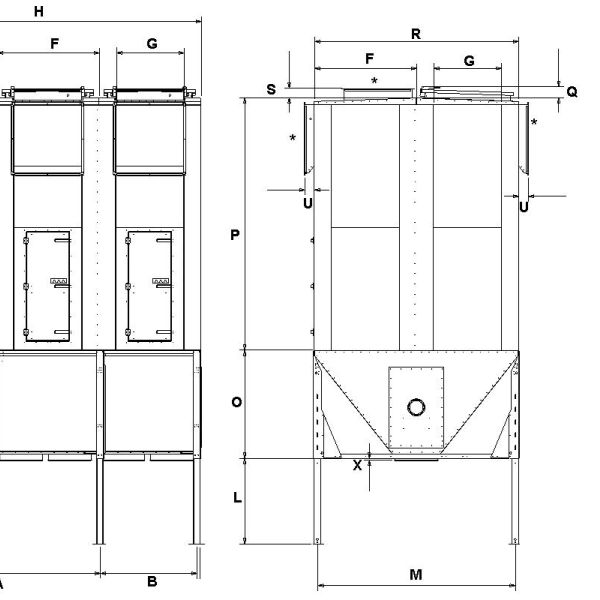
    Nederman’s Baghouse dust collector with a container.

    A baghouse dust collector designed for small and medium-sized woodwork shops producing limited volumes of material. The NFPZ3000 baghouse dust collector is designed for small and medium-sized woodwork shops producing limited volumes of material. It is a modular dust collector made of galvanised steel sheet with a telescopic support, suitable for outdoor use. Available in two different widths, type E 1200 mm (47″) and type J 2400 mm(94″). Each module of the filter design is fitted with a combined inspection and explosion relief door. Filter cleaning with shaker. The filter is fitted with the unique patented SUPERBAG. The material removed is separated in the filter hopper and collected in metal containers. The filter can be supplied either for continuous operation or with a break to clean the filter bags every four hours.

  • Specs

    •Handles air volumes from 1,500-33,000 m3/h (883-19,400 cfm)

    •ATEX-certified for St1 and St2 dust with a Kst value up to 300 bar m/s

    •Compact design

    •Suitable for handling large volumes of air with limited material contamination

    •Designed for continuous operation or operation with 15 minute breaks for cleaning, approx. every four hours

    •For mounting on the ground

    •Overpressure or vacuum versions up to 5 000 Pa

    •Explosion relief upwards or sideways

    •Powerful online cleaning with efficient regeneration fans

    •Patented antistatic polyester SUPERBAGs

    •Easy to install on site and extend when required

    •Low energy consumption.
  • Download

Get Quote

Please provide the following information and a member of our team will be in touch with you shortly.

Sign up for updates!

Receive promotions, new product introductions, AW Market Direct releases and more from AW Machinery LLC right to your inbox.

By submitting this form, you are consenting to receive marketing emails from: AW Machinery LLC, 6161 Mt Hope Rd, Apple Creek, OH, 44606, US, http://www.awmachineryllc.com/. You can revoke your consent to receive emails at any time by using the SafeUnsubscribe® link, found at the bottom of every email. Emails are serviced by Constant Contact.